Линия для ламинирования теста, JH-3000M

Оборудование для ламинирования теста Juheng применяется для производства широкого ассортимента продукции. Наш ламинатор изготавливает листы теста идеального и высокого качества, применяется для производства датского, замороженного или выпеченного слоеного теста, пальмира, а также других кондитерских изделий. Наша машина для производства теста обеспечивает его щадящую обработку, гарантирующую непрерывность, однородность и высокое качество тестового листа с сохранением деликатной структуры пор.
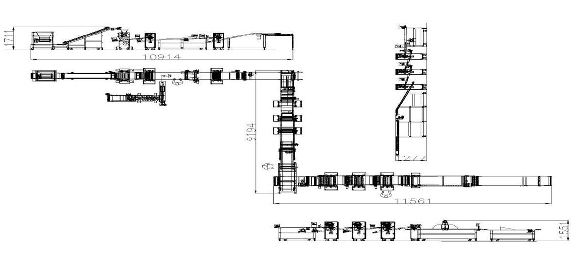
- Длина*Ширина*Высота
- 10914(Д)*1190(Ш)*1711(В), мм
9194 (Д)*1190 (Ш)*1277(В), мм
11561 (Д)*1320 (Ш)*1551(В), мм
- Производственная мощность
- 1000 кг/ч
- Мощность
- 380В, 3 фазы, 50Гц, 29кВт
- Лист проходит через три станции обжатия листа до желаемой конечной толщины теста.
- Интеллектуальная система управления PLC и операционная система HMI обеспечивают удобство работы.
- В сочетании с различными аксессуарами для нарезки, наполнения, раскатывания, складывания или декорирования ламинатор для теста может производить любые слоеные хлебобулочные изделия.








